Transformamos tus ideas en proyectos tangibles mediante planos arquitectónicos profesionales y renderizados 3D fotorrealistas. Visualiza tu proyecto antes de construirlo.
Creación de planos técnicos detallados, incluyendo plantas, alzados, secciones y detalles constructivos.
Desarrollamos modelos tridimensionales precisos que te permiten explorar cada ángulo y detalle de tu proyecto con total realismo.
Imágenes de alta calidad que muestran materiales, iluminación y ambientación tal como será el resultado final de tu construcción.
Te mostramos cómo desarrollamos un proyecto completo: desde los planos técnicos iniciales hasta la visualización 3D final. Este es el proceso que seguimos para convertir tus ideas en proyectos constructivos reales.
Creamos planos arquitectónicos profesionales que incluyen plantas de distribución, medidas precisas, superficies detalladas y toda la información técnica necesaria para la correcta ejecución del proyecto. Cada espacio está optimizado para maximizar funcionalidad y confort.
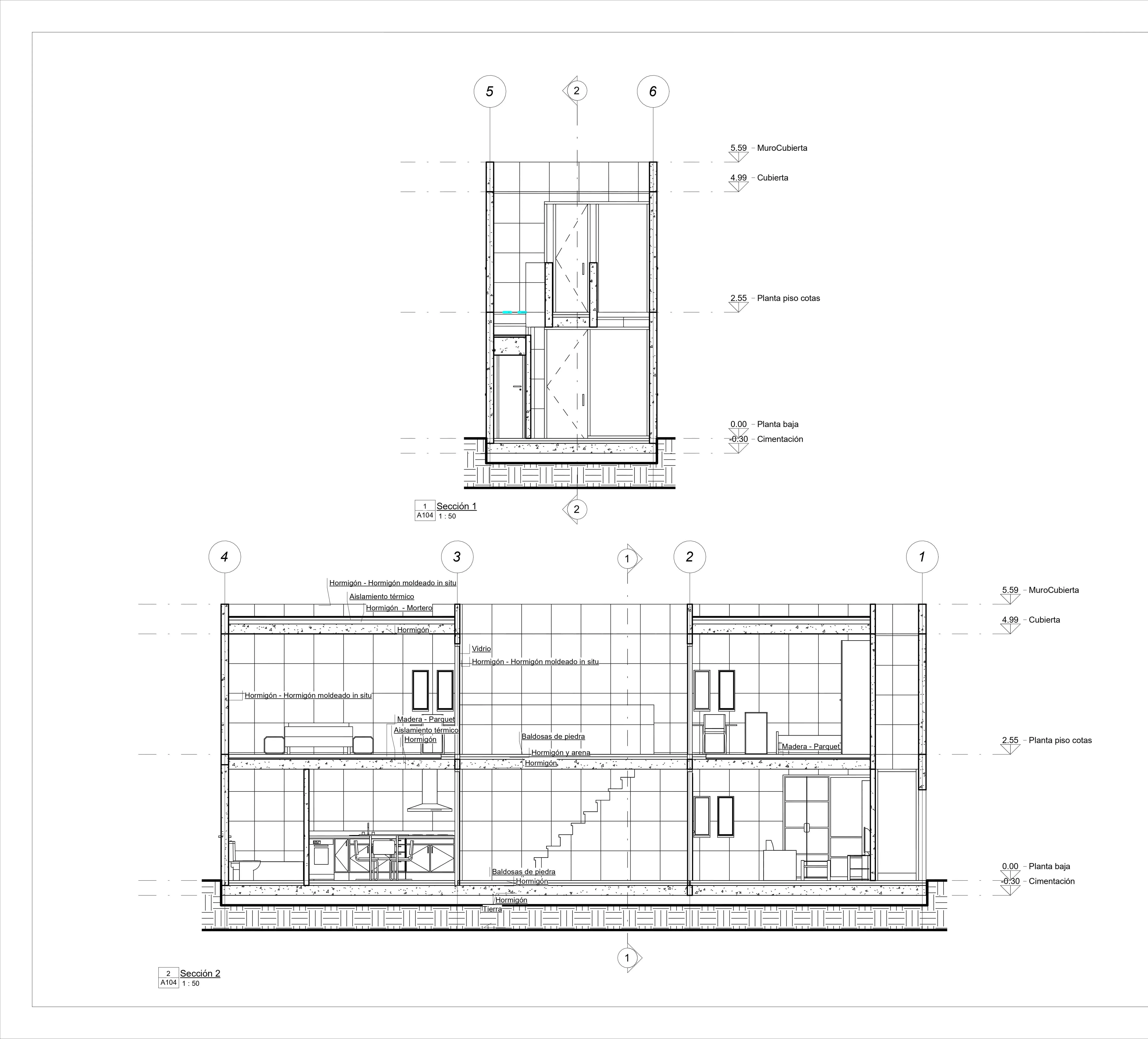
Desarrollamos secciones transversales y alzados que muestran la estructura vertical del proyecto, incluyendo alturas, niveles, escaleras y la relación entre espacios. Esta documentación técnica es fundamental para comprender la volumetría y proporciones de la construcción.
Transformamos los planos técnicos en visualizaciones 3D fotorrealistas que te permiten ver exactamente cómo quedará tu proyecto terminado. Incluimos vistas exteriores, interiores, perspectivas en corte y renderizados con materiales y iluminación real para una comprensión completa del diseño.
Nuestro equipo de diseño cuenta con la formación y certificación necesaria para garantizar que cada proyecto cumpla con los más altos estándares de calidad .
Convierte tus ideas en realidad con nuestro servicio profesional de diseño y visualización 3D. Te acompañamos desde el concepto inicial hasta la entrega del proyecto finalizado.